中古一戸建て 相模原市南区下溝
スーパー、コンビニ、ドラッグストア等が徒歩圏内で生活便利な環境です☆彡
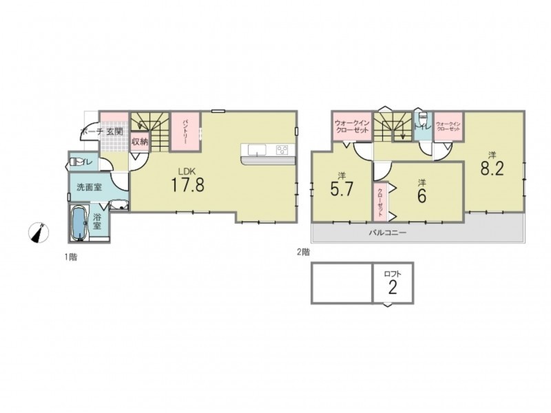
ロフト付き☆彡
駐車場2台可(車種による)☆彡
< ライフインフォメーション >
・三和 麻溝店:徒歩約7分(約557m)
・ファミリーマート 相模原中丸店:徒歩約2分(約142m)
・Welpark(ウェルパーク) 相模原原当麻店:徒歩約6分(約445m)
・相模原高等学校付属光明幼稚園:徒歩約13分(約1025m)
・相模原市立麻溝小学校:徒歩約16分(約1213m)
・相模原市立相陽中学校:徒歩約33分(約2582m)
・麻溝郵便局:徒歩約13分(約967m)
< リフォーム内容(2026年3月)>
・クロス(天井・壁)交換
・エアコン2台新規交換
・ウォシュレット2台新規交換等
支払例
※地方銀行/借入金2,990万円、返済期間40年、金利1.000%(変動金利(※諸費用外))の場合
※審査により金利は変わる可能性があります。
物件概要
- 交通
-
JR相模線 原当麻駅 まで 徒歩13分
- 土地面積
- 公簿 117.76㎡ (35.62坪)
- 建物面積
- 93.15㎡ (28.17坪)
- 築年数
-
2021年
(令和3)
1月
築5年 - 建ぺい率
- 50%
- 容積率
- 80%
- 土地権利
- 所有権
- 構造および階数
- 木造 地上2階建
- 小学校区
- 麻溝 (1213m)
- 中学校区
- 相陽 (2582m)
- 私道負担
- 地目
- 宅地
- 現況
- 居住中
- 引渡時期
- 相談
- 駐車場
- 有 2台
- 上水道
- 公共
- 下水道
- 公共
- ガス
- 都市ガス
- 都市計画
- 市街化区域
- 用途地域
- 1種低層
- 設備・条件
- 浴室乾燥機、ウォークインクローゼット、ロフト、駐車場2台分、 トイレ2箇所、床下収納、24時間換気システム
- 備考
- 取引態様
- 仲介
