新築一戸建て 相模原市中央区田名No.1
所在地
相模原市中央区田名No.1
3,580万円
30.05坪
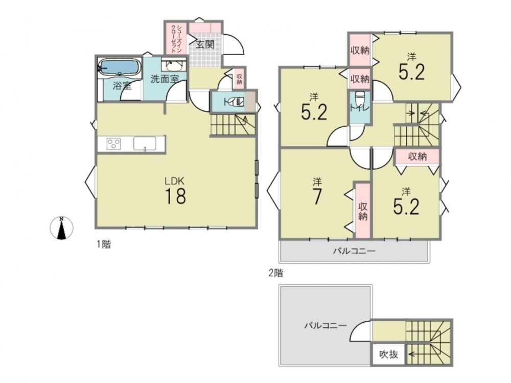
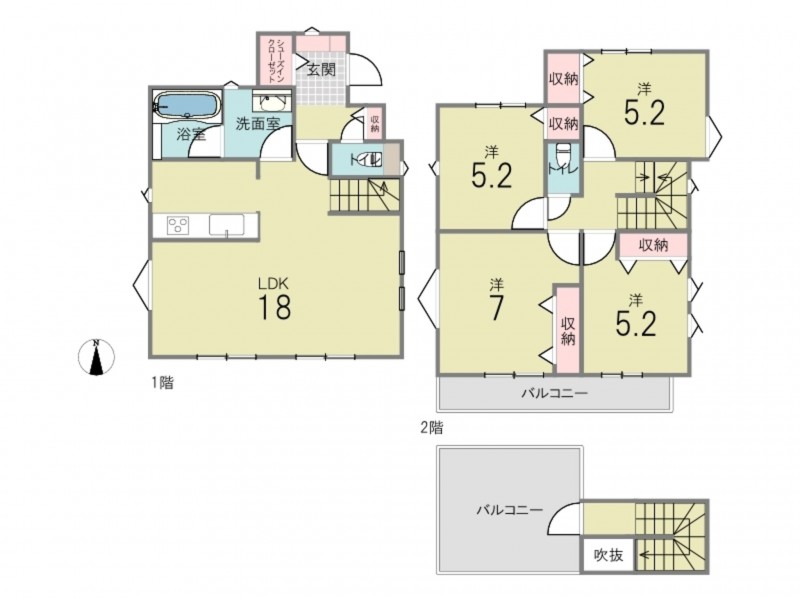
4LDK
駐車場3台可(車種による)☆彡
LDK約18帖で広々ゆとりある空間☆彡
< ライフインフォメーション >
・ヨークマート:徒歩約14分(約1110m)
・ローソン:徒歩約5分(約350m)
・ウェルシア:徒歩約17分(約1300m)
・田名保育園:徒歩約5分(約358m)
・上田名幼稚園:徒歩約11分(約)860m
・相模原市立田名小学校:徒歩約11分(約843m)
・相模原市立田名中学校:徒歩約14分(1070m)
月々の
支払例
支払例
万円
年
%
円
※地方銀行/借入金3,580万円、返済期間40年、金利0.775%(変動金利(※諸費用外))の場合
※審査により金利は変わる可能性があります。
物件概要
- 交通
-
JR横浜線 橋本駅 まで 徒歩22〜23分
JR横浜線 相模原駅 まで 徒歩23〜24分
JR横浜線 淵野辺駅 まで 徒歩31〜32分
- 土地面積
- 120.58㎡ (36.47坪)
- 建物面積
- 99.36㎡ (30.05坪)
- 築年数
- 2026年 (令和8) 5月
- 建ぺい率
- 60%
- 容積率
- 150%
- 土地権利
- 所有権
- 構造および階数
- 木造 地上2階建
- 小学校区
- 田名 (843m)
- 中学校区
- 田名 (1070m)
- 私道負担
- 地目
- 宅地
- 現況
- 空
- 引渡時期
- 相談
- 駐車場
- 有 3台
- 上水道
- 公共
- 下水道
- 公共
- ガス
- 都市ガス
- 都市計画
- 市街化区域
- 用途地域
- 1種中高
- 建築確認番号
- 第25UDI1T建築00917号
- 設備・条件
- 駐車場3台分、 トイレ2箇所
- 備考
- 取引態様
- 仲介
