新築一戸建て 相模原市中央区田名№10
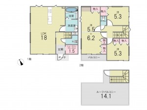
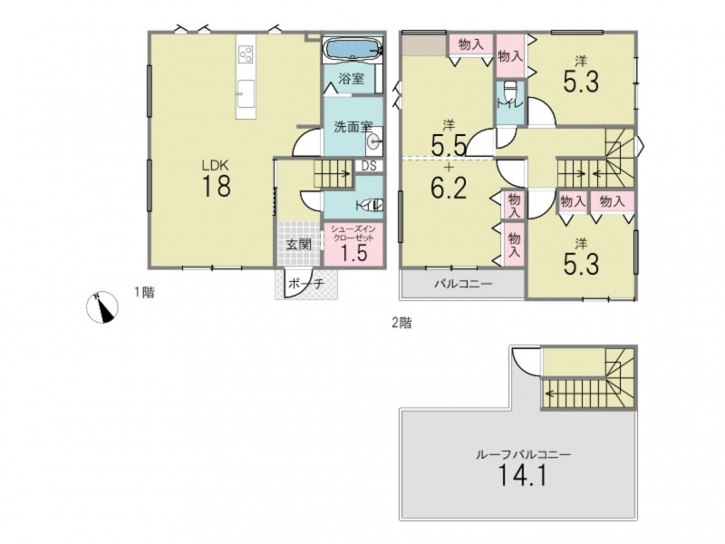
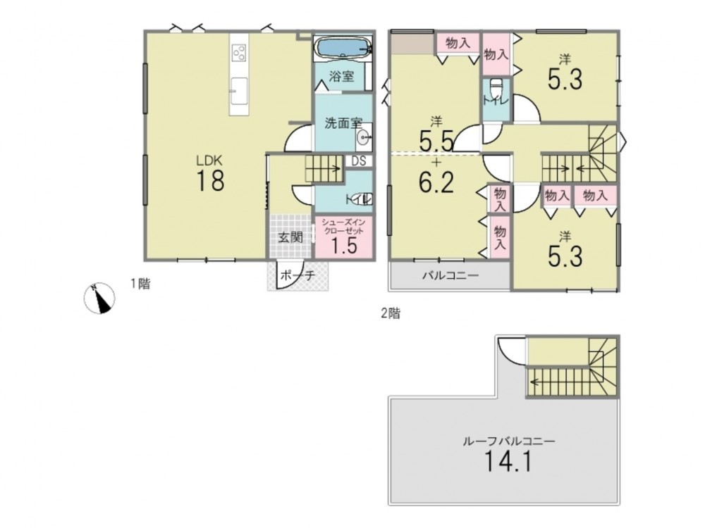
ルーフバルコニー付☆彡
シューズクローゼットなど収納豊富な間取り☆彡
< ライフインフォメーション >
・ヨークマート 田名店:徒歩約7分(約511m)
・ファミリーマート 田名堀之内店:徒歩約4分(約264m)
・ウエルシア相模原田名店:徒歩約6分(約416m)
・友愛保育園:徒歩約4分(約317m)
・上田名幼稚園:徒歩約7分(約538m)
・相模原市立田名小学校:徒歩約6分(約448m)
・相模原市立田名中学校:徒歩約9分(約653m)
・田名郵便局:徒歩約6分(約475m)
支払例
※地方銀行/借入金3,590万円、返済期間40年、金利1.000%(変動金利(※諸費用外))の場合
※審査により金利は変わる可能性があります。
物件概要
- 交通
-
JR横浜線 橋本駅 バス28分乗車 バス停田名バスターミナル まで 徒歩10分
JR横浜線 相模原駅 バス26分乗車 バス停田名バスターミナル まで 徒歩10分
JR横浜線 橋本駅 バス28分乗車 バス停田名バスターミナル まで 徒歩10分
- 土地面積
- 120.16㎡ (36.34坪)
- 建物面積
- 103.51㎡ (31.31坪)
- 築年数
- 2026年 (令和8) 4月 完成予定
- 建ぺい率
- 60%
- 容積率
- 150%
- 土地権利
- 所有権
- 構造および階数
- 木造 地上2階建
- 小学校区
- 田名 (448m)
- 中学校区
- 田名 (653m)
- 私道負担
- 地目
- 宅地
- 現況
- 引渡時期
- 相談
- 駐車場
- 有 2台
- 上水道
- 公共
- 下水道
- 公共
- ガス
- プロパン個別
- 都市計画
- 市街化区域
- 用途地域
- 1種中高
- 建築確認番号
- 第R07SHC117732号
- 設備・条件
- 駐車場2台分、 トイレ2箇所、床下収納、ルーフバルコニー
- 備考
- 取引態様
- 仲介
