中古一戸建て 相模原市中央区上溝
所在地
相模原市中央区上溝
3,300万円
70.83坪
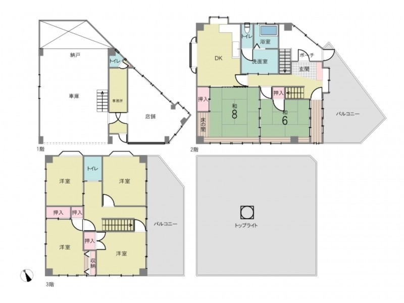
6DK
駐車場4台可(車種による)☆彡
駅徒歩約10分♪
生活便利な住環境☆彡
< ライフインフォメーション >
・sanwa(サンワ) 番田店:徒歩約6分(約402m)
・ローソン 相模原上溝南中前店:徒歩約3分(約202m)
・クリエイトSD(エス・ディー) 番田店:徒歩約5分(約345m)
・みずほ幼稚園:徒歩約5分(約383m)
・相模原市立南上溝保育園:徒歩約7分(約523m)
・相模原市立上溝小学校 :徒歩約14分(約1045m)
・相模原市立上溝南中学校:徒歩約2分(約98m)
・番田駅前郵便局:徒歩約11分(約859m)
月々の
支払例
支払例
万円
年
%
円
※地方銀行/借入金3,300万円、返済期間40年、金利1.000%(変動金利(※諸費用外))の場合
※審査により金利は変わる可能性があります。
物件概要
- 交通
-
JR相模線 番田駅 まで 徒歩10分
- 土地面積
- 163.82㎡ (49.55坪)
- 建物面積
- 234.15㎡ (70.83坪)
- 築年数
-
1988年
(昭和63)
12月
築37年 - 建ぺい率
- 60%
- 容積率
- 200%
- 土地権利
- 所有権
- 構造および階数
- 鉄骨造
- 小学校区
- 上溝 (1045m)
- 中学校区
- 上溝南 (98m)
- 私道負担
- 地目
- 宅地
- 現況
- 居住中
- 引渡時期
- 相談
- 駐車場
- 有
- 上水道
- 下水道
- ガス
- 都市ガス
- 都市計画
- 市街化区域
- 用途地域
- 2種中高
- 建築確認番号
- 第S63確認建築相模原相00070号
- 設備・条件
- 駐車場3台分、 トイレ2箇所
- 備考
- ※増築部分有り、増築部分面積は含まれておりません。(約20㎡)
- 取引態様
- 仲介
