新築一戸建て 相模原市中央区千代田1丁目No.1
所在地
相模原市中央区千代田1丁目No.1
4,690万円
29.55坪
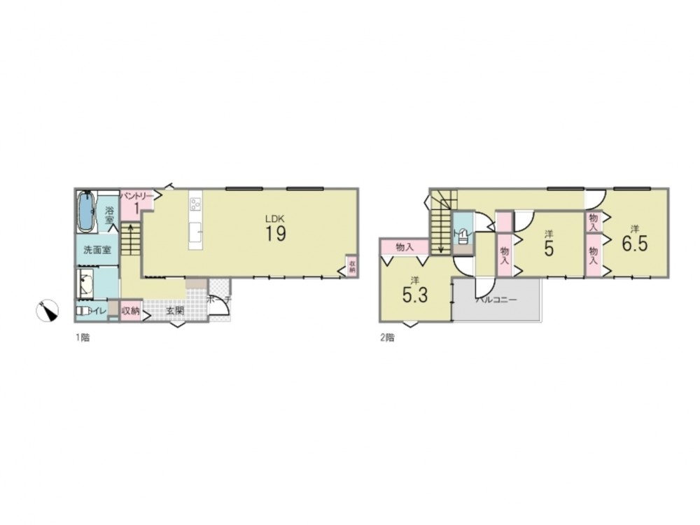
3LDK
オール電化住宅☆彡
駐車場2台可(車種による)☆彡
< ライフインフォメーション >
・sanwa(サンワ) 富士見店:徒歩約3分(約206m)
・セブンイレブン 相模原富士見6丁目店:徒歩約2分(約141m)
・ザ・ダイソー 三和富士見店:徒歩約3分(約237m)
・千代田保育園分園ムーミン:徒歩約7分(約543m)
・相模原市立中央小学校:徒歩約8分(約603m)
・相模原市立中央中学校:徒歩約8分(約591m)
・相模原郵便局:徒歩約7分(約533m)
月々の
支払例
支払例
万円
年
%
円
※地方銀行/借入金4,690万円、返済期間40年、金利1.000%(変動金利(※諸費用外))の場合
※審査により金利は変わる可能性があります。
物件概要
- 交通
-
JR相模線 上溝駅 まで 徒歩22分
JR横浜線 矢部駅 まで 徒歩24分
- 土地面積
- 137.43㎡ (41.57坪)
- 建物面積
- 97.70㎡ (29.55坪)
- 築年数
- 2026年 (令和8)
- 建ぺい率
- 60%
- 容積率
- 200%
- 土地権利
- 所有権
- 構造および階数
- 木造 地上2階建
- 小学校区
- 中央 (603m)
- 中学校区
- 中央 (591m)
- 私道負担
- 地目
- 宅地
- 現況
- 引渡時期
- 相談
- 駐車場
- 有 2台
- 上水道
- 公共
- 下水道
- 公共
- ガス
- その他
- 都市計画
- 市街化区域
- 用途地域
- 1種住居
- 建築確認番号
- 第KBI-SGM25-10-3293号
- 設備・条件
- オール電化、駐車場2台分、 トイレ2箇所、床下収納
- 備考
-
・土地面積には路地状部分約48m2含みます。
・1F非開放性部分1.559m2含み、別途2Fバルコニー非開放性部分1.092m2有ります - 取引態様
- 仲介
